Preventa En Carola

Departamento en Carola, mod. 3 hab

Desde: $8,690,000
#VF1701
Departamento en Carola, mod. 3 hab
  • 212m2 de construcción
  • 1 planta
  • 3 habitaciones
  • 3 baños
  • Entrega: Septiembre 2027
Agregar a favoritos

"Vivir es solo el comienzo"

Departamento de lujo en preventa, ubicado dentro del condominio CAROLA, el cual forma parte del desarrollo CITTADELA.

La privada es un de los subcondominios de torres departamentales horizontales; cuenta con 36 departamentos distribuidos en 3 torres  de 2 y 3 habitaciones, ideales para inversionistas acostumbrados al estilo de vida de la ciudad, pero que a la vez deseen disfrutar de la privacidad y relajación que ofrece el desarrollo CITTADELA. Además de las múltiples amenidades con las que cuenta el desarrollo CITTADELA, el subcondominio CAROLA ofrece también amenidades privativas para sus condóminos, a fin de que puedan disfrutar de todos los servicios en la comodidad de su condominio.

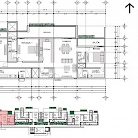
El modelo de 3 habitaciones cuenta con una distribución armoniosa, con vistas hermosas a las áreas verdes de la privada.

Nota: La compra de los departamentos está condicionado a la adquisición de la acción de la casa club de CITTADELA.

*** Información sujeta a cambio de precios, disponibilidad, fecha de entrega y adicionales sin previo aviso.

*** Perspectivas orientativas, precio no incluye mobiliario ni decoración.

*** Precio no incluye gastos notariales e impuestos de adquisición.

  • Sala-Comedor
  • Cocina con barra desayunadora
  • Baño de visitas
  • Habitación principal con clóset vestidor, baño y balcón
  • Habitación 1 con baño y clóset vestidor Con balcón
  • Habitación 2 con baño y clóset vestidor
  • Terraza
  • Área de lavado
  • Estacionamiento no techado Capacidad 3 vehículos
  • Hamaqueros
  • Hidroneumático
  • Red de drenaje
  • Biodigestor Uno en cada torre
  • Gavetas en baño
  • Gabinetes en cocina Inferiores y superiores
  • Clóset vestido
  • Baños vestidos
  • Parrilla eléctrica
  • Horno Eléctrico
  • Microondas
  • Campana
  • Triturador de alimentos en tarja
  • Suministro de agua vía Ósmosis Inversa
  • Luces LED con sistema inteligente
  • Cancelería
  • Fijos de cristal para regaderas
  • Espejos
  • Calentador Eléctrico
  • Deshumidificadores En clósets
  • Sistema de extracción en baños
  • Pórtico de acceso
  • Fuentes interactivas Con espejos de agua
  • Lobby
  • Recepción
  • Oficinas administrativas
  • Bodega
  • Salón de usos múltiples
  • Terraza Con cocina y baños
  • Bar
  • Restaurante Con cocina y baños
  • Ludoteca
  • Áreas verdes
  • Elevador Y escaleras de emergencia
  • Cine Capacidad 16 personas
  • Gimnasio Con máquinas de fuerza y cardiovasculares
  • Salones para clases
  • Cancha futbol
  • Cancha de tennis
  • Cancha de padel 2 canchas
  • Cancha de basquetball Media cancha
  • Pista Jogging
  • Terraza techada 2 terrazas con mobiliario y baños
  • Piscina Para adultos y niños
  • Canal de nado 2 canales
  • Asoleaderos Con áreas de sombrillas y camastros
  • Arenero 2 areneros
  • Área de juegos infantiles
  • Valet Parking & Área de Estacionamiento
  • Salón de Usos Múltiples con Capacidad de 300 personas
  • Restaurante
  • Snack Bar con baños y vista a la piscina
  • Bar
  • Centro de negocios
  • Ludoteca
  • Gimnasio
  • Salones para clases
  • Sauna y vapor
  • Piscina
  • Canal de nado
  • Cancha de basquetball
  • Cancha de padel
  • Cancha de soccer
  • Cancha de tennis
  • Academias deportivas
  • Boliche
  • Caseta de vigilancia 24/7
  • Áreas de contemplación y descanso
  • Estación de gimnasio al aire libre
  • Parque de patines y patinetas
  • Área recreativa para niños
  • Anfiteatro
  • Fuentes interactivas
  • Canchas deportivas
  • Jardineras con Cajones de Estacionamiento
  • Zona Arqueológica
  • Tee de Práctica
  • Mini Golf
  • Puentes
  • Capilla
  • Parque central
  • Vía verde con circuito de jogging
  • Zona de Ejercicio Urbano
  • Explanada Verde
  • Lago Central

Propiedades sugeridas

¿Cómo podemos ayudarte?

Contáctanos

Ubicación: Calle 18 #107 INT. 1 por 27 y 29 Col. México, 97125 Mérida, Yuc.

Alianzas