Preventa En Sereniti Tamara

Departamento en Sereniti en Tamara, mod. D

Desde: $10,641,419
#VF2455
Departamento en Sereniti en Tamara, mod. D
  • 224m2 de construcción
  • 2 plantas
  • 3 habitaciones
  • 3 baños
  • Entrega: Marzo 2026
Agregar a favoritos
Descripción

Sereniti es un complejo vertical privado y exclusivo que se encuentra dentro de la privada Tamara. La sub privada constará de 113 departamentos divididos en dos torres con amenidades propias como lobby, piscina, terraza y demás amenidades como parques y seguridad de Tamara.

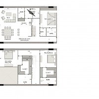
El modelo D se caracteriza por tener una distribución en dos niveles con tres amplias habitaciones, una de ellas en planta baja y cuenta con una doble altura en el área de sala-comedor, así como tener la opción de estar en los niveles seis y siete.

La privada es ideal para inversionistas que deseen comprar en un desarrollo con un estilo de vida armónico y natural, en un entorno urbanístico sustentable con amenidades de primer nivel, cerca de los mejores servicios de la ciudad.

*** Información sujeta a cambio de precios, disponibilidad, fecha de entrega y adicionales sin previo aviso.

*** Perspectivas orientativas, precio no incluye mobiliario ni decoración.

*** Precio no incluye gastos notariales e impuestos de adquisición.

  • Sala-Comedor A doble altura
  • Cocina con isla
  • Alacena
  • Baño de visitas
  • Terraza
  • Habitación 1 con baño y clóset
  • Cuarto de servicio con baño
  • Estacionamiento techado Capacidad 2 vehículos
  • Habitación principal con baño y clóset vestidor
  • Habitación 2 con baño y clóset vestidor
  • Gavetas en cocina
  • Parrilla eléctrica
  • Campana
  • Fijos de cristal para regaderas
  • Gavetas en baño Bajo lavabo
  • Aires acondicionados En habitaciones y sala-comedor
  • Hidroneumático
  • Clóset vestido
  • Lobby Con control de acceso
  • Terraza
  • Gimnasio
  • Cancha de padel
  • Coworking
  • Lounge bar
  • Motor Lobby
  • Conserje
  • Asoleadero
  • Piscina
  • Área de asadores Y parrillas
  • Áreas verdes
  • Estacionamiento techado
  • Estacionamiento de visitas
  • Acceso controlado
  • Caseta de vigilancia 24/7
  • Bardas perimetrales Electrificadas
  • Cámaras de seguridad
  • Parque Social
  • Parque Infantil
  • Parque Para jóvenes
  • Parque para mascotas
  • Parque Deportivo
  • Parque Eco-arqueológico
  • Área Comercial

Propiedades sugeridas

¿Cómo podemos ayudarte?

Contáctanos

Ubicación: Calle 18 #107 INT. 1 por 27 y 29 Col. México, 97125 Mérida, Yuc.

Alianzas